
適用物料:原煤、大塊物料
價格區間:5-100W
處理能力:50-460t/h
產品別名:波動振動篩,礦用波動篩
索要優惠報價
銷售熱線:
13782587121
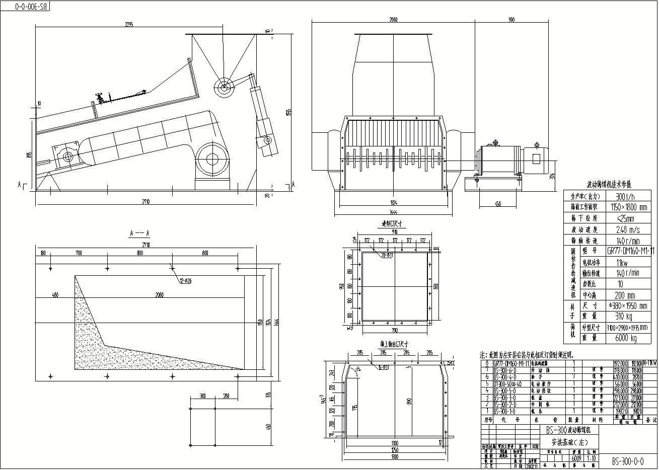
BS系列礦用波動篩是火力發電廠輸煤系統的重要設備之一,在冶金、建材、化工、煤炭等系統也可廣為利用。波動篩是由多根平行排列的滾軸組成,一般為6~10根滾軸,多達20根滾軸。滾軸上裝有梅花形篩片。滾軸由電動機和減速器經鏈輪或齒輪帶動滾軸旋轉。轉動方向與物料方向相同。
奧創機械波動篩出廠操作維護及檢修知識簡介:
一、工作時,首先開車,然后加入待篩分物料,否則會造成機器損傷,降低機器使用壽命。
二、在機器使用過程中,每次開機前必須檢查機器內是否存有物料。
三、應先開機,后給料。停機時,應先停料,后關機。確保停前機器內沒有物料。
四、禁止帶負荷開機。
五、每三個月向軸承內部加注潤滑油一次。
六、機器投入使用后三個月檢修一次。
七、當篩片受損嚴重后,不能達到篩分目的時,應及時更換新的篩片
波動篩未來應用須知:
隨著經濟的快速發展,現代工業的大型化系統化,科技日益更新,人們對礦石的需求量也越來越大。但同時,由于礦產的過度開發使得巖石趨向低品質化。為此,針對這種易碎裂,抗壓強度中等的礦材,需要一種適合的篩分機篩分。波動篩無論其功能還是工作的穩定性和效率,都是不二的選擇。它將會是未來水泥礦石等礦業篩分體系的主流設備。在確保篩分效率和篩機工作性能的同時追求大型化和系列化也是一個重要的發展方向。
波動篩是由數片并列的特制桃形篩片組成的篩孔與幾排轉子(篩片與軸組成)形成篩面,各轉子以同速、同向做周向旋轉,在其作用下,篩面上的物料借助于桃形篩片交織回轉,年夜塊物料被撥騰起來,并經篩面到碎煤機破碎,小粒徑物料則經篩孔直接落下,從而到達篩分的目的。為了獲得軸向及縱向的波動,提高篩分效率,安裝時統一軸上相鄰的兩篩片在徑向錯開一等位角(15°、30°或45°),相鄰兩軸上的篩片位置則以交織的形式排列。



|
型 號
|
BS-100
|
BS-200
|
BS-300
|
BS-500
|
BS-700
|
BS-1000
|
BS-1400
|
|
|
出 力(t/h)
|
100
|
200
|
300
|
500
|
700
|
1000
|
1400
|
|
|
軸 數
|
6
|
7
|
7
|
8
|
9
|
11
|
11
|
|
|
篩孔尺寸(mm)
|
40x 100
|
40x130
|
40x130
|
40x130
|
40x130
|
40x130
|
40x130
|
|
|
篩分效率(%)
|
90
|
90
|
90
|
90
|
90
|
90
|
90
|
|
|
篩軸轉速(r/min)
|
140
|
140
|
140
|
140
|
140
|
140
|
140
|
|
|
電機功率(Kw)
|
3.0
|
5.5
|
7.5
|
11
|
11
|
15
|
22
|
|
|
電動推桿
|
型 號
|
手 動
|
DT300-50- 40
|
DT300-50- 40
|
DT500-50- 40
|
DT500-50- 40
|
DT500-50- 40
|
DT500-50- 40
|
|
功 率(Kw)
|
|
0.37
|
0.37
|
0.55
|
0.55
|
0.55
|
0.55
|
|
|
推 力(Kg)
|
|
300
|
300
|
500
|
500
|
500
|
500
|
|
|
行 程(mm)
|
|
500
|
500
|
500
|
500
|
500
|
500
|
|
|
外形尺寸(長x 寬x高)(mm)
|
2655x 2250x 1400
|
3100x 2550x 1935
|
3100x 2900x 1935
|
3400x 3000x 2050
|
3800x 3100x 2150
|
4200x 3100x 2250
|
4500x 3100x 2250
|
|
|
質 量(Kg)
|
3500
|
5100
|
6000
|
6500
|
7100
|
9820
|
11800
|
|
Copyright(C) 豫ICP備18015440號